それは、 泊まれる「住まい」。
空室検索
ホテルの魅力
-
01
セカンドハウスのような客室設計
自然豊かな環境の中で、まるで自宅のように過ごせる落ち着いた空間と機能性を両立し、グループ利用やファミリー滞在にも対応します。都市部の喧騒を離れ、穏やかな時間が流れる小美玉だからこそ実現できる、静かでゆとりあるステイをご体感ください。
-
02
長期滞在にも対応するミニキッチン
出張や連泊利用にも便利なミニキッチンを完備。外食だけに頼らず、自分のペースで生活できる自由度の高さも特長です。数日間の滞在でも“生活のリズム”を保てる設計が、ビジネス利用にも好評です。
-
03
独立水回りで保つ生活リズム
バス・トイレ・洗面を独立させた設計により、複数名での滞在でも快適にご利用いただけます。ゴルフや仕事で早朝出発の日も、ストレスなく準備が可能。日常に近い使い勝手が、滞在中の満足度を高めます。
-
04
1部屋1台分の駐車場を確約
車移動が中心となる小美玉エリアだからこそ、1部屋につき1台分の駐車スペースを予約不要で確保。満車を心配することなく、安心してお越しいただけます。ゴルフ帰りやビジネス利用で遅い時間の到着でも、駐車場探しのストレスなくスムーズにチェックイン可能です。
客室
スタンダードルーム
・全室にシャワーブース、無料Wi-Fi、個別エアコンも完備。
・温水洗浄機付きトイレ・洗面台・シャワールームがそれぞれ独立。
・暮らしに必要な設備やアメニティが一通り揃い、長期のご滞在でも快適にお過ごしいただけます。
4名
シングルベッド4台
33㎡
禁煙ルーム
ツインルーム
・全室に浴槽付きバスルーム、無料Wi-Fi、個別エアコンも完備。
・温水洗浄機付きトイレ・洗面台・バスルームがそれぞれ独立。
・暮らしに必要な設備やアメニティが一通り揃い、1~2名でゆったりとご滞在したいお客様におすすめです。
2名
シングルベッド2台
26㎡
禁煙ルーム
エコノミーツインルーム
・全室にシャワーブース、無料Wi-Fi、個別エアコンも完備。
・温水洗浄機付きトイレ・洗面台・シャワールームがそれぞれ独立。
・暮らしに必要な設備やアメニティが一通り揃い、1~2名でコンパクトにご滞在したいお客様におすすめです。
2名
シングルベッド2台
10㎡
禁煙ルーム
旅のご案内
-
アクセス情報
茨城空港や主要幹線道路から車で快適にアクセス。
無料駐車場も完備し、お車での移動を前提とした旅行やビジネス滞在に便利です。
ゴルフ場や工業団地への移動拠点としても利用しやすいロケーションです。
茨城空港
距離3.0km 車で約5分 タクシーご利用の場合、料金1,600円程度(通常料金)
そのほかのアクセス情報はこちら
-
SMA・MO inn Omitamaの過ごし方
ミニキッチンや独立バス・トイレを備えた客室で、短期滞在から長期利用まで快適に。
ご家族やグループでの滞在はもちろん、出張時のセカンドハウスのような使い方も可能です。
自由度の高いステイで、自分らしい時間をお過ごしください。
スマモイン小美玉の過ごし方
-
周辺の観光スポット
ゴルフ場や公園、地元グルメを楽しめる飲食店など、穏やかな時間が流れるエリア。
大洗方面や水戸エリアへの観光拠点としても使いやすく、週末のレジャーや家族旅行にも最適です。
ご予定の合間に訪れてみてはいかがでしょうか。
四季の自然を楽しむ周辺観光はこちら
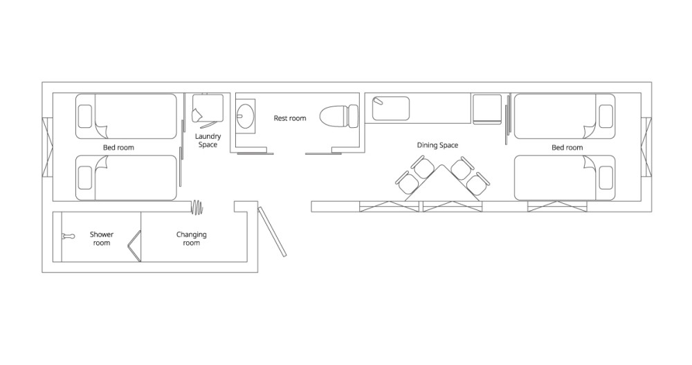
スタンダードルームの間取り図
ツインルームの間取り図
エコノミーツインルームの間取り図
アメニティ・客室設備
アメニティ
-
歯ブラシ・コットン・カミソリ・ヘアブラシ・シャワーキャップ
-
シャンプー・リンス・ボディソープ
-
タオル(バスタオル+フェイスタオル)
-
水
-
ハンガー
-
マグカップ
-
ハンドソープ
-
スリッパ
客室設備
-
テレビ・デスク
-
ドライヤー・デスクミラー
-
洗濯機
-
冷蔵庫
-
流し台
-
洗面台
-
シャワー室
-
エアコン(冷房)
-
オイルヒーター
-
電子レンジ
アメニティ・客室設備
アメニティ
-
歯ブラシ・コットン・カミソリ・ヘアブラシ・シャワーキャップ
-
シャンプー・リンス・ボディソープ
-
タオル(バスタオル+フェイスタオル)
-
水
-
ハンガー
-
マグカップ
-
ハンドソープ
-
スリッパ
客室設備
-
テレビ・デスク
-
ドライヤー・デスクミラー
-
洗濯機
-
冷蔵庫
-
流し台
-
洗面台
-
シャワー室
-
エアコン(冷房)
-
オイルヒーター
-
電子レンジ
アメニティ・客室設備
アメニティ
-
歯ブラシ・コットン・カミソリ・ヘアブラシ・シャワーキャップ
-
シャンプー・リンス・ボディソープ
-
タオル(バスタオル+フェイスタオル)
-
水
-
ハンガー
-
マグカップ
-
ハンドソープ
-
スリッパ
客室設備
-
テレビ・デスク
-
ドライヤー・デスクミラー
-
洗濯機
-
冷蔵庫
-
流し台
-
洗面台
-
シャワー室
-
エアコン(冷房)
-
オイルヒーター
ご利用案内
ご宿泊は事前にご予約いただき、到着後は
タブレット端末のセルフチェックイン方式となります。
-
01
ご予約・事前決済
公式ホームページで事前にご予約・決済を完了。
ご予約時に登録いただくメールアドレスへ事前宿泊者情報入力用マイページを送付。
「氏名」「国籍」「住所」「電話番号」「メールアドレス」「パスポートの写し」を事前入力。
- ※宿泊者情報を事前入力することで当日のチェックイン時の入力が省略されます。
- ※「パスポートの写し」は外国籍のお客様が対象です。
宿泊者全員の情報入力が完了、または宿泊日の前日22時頃までに「チェックインコード」をご登録メールアドレスへ送付。
-
02
ホテルに到着・セルフチェックイン
到着後は受付棟のタブレット端末でセルフチェックイン。
- ※チェックイン可能時間は15:00〜翌朝6:00までとなります。
「日本語」「英語」「中国語」「韓国語」を選択。
「チェックイン」を選択。
チェックインコードの入力またはQRコードを画面にかざす。
事前宿泊者情報をタブレット端末へ入力- ※事前宿泊者情報が入力済みの場合は省略
宿泊者情報に誤りがないかご確認

-
03
本人確認
画面の指示に従い、コールセンターへタブレット端末を通して本人確認。
「チェックインコード」「氏名」をオペレーターへ伝え、宿泊者全員の本人確認をおこないます。 -
04
チェックイン完了
「お部屋番号」「開錠番号」が表示されます。
ご登録メールアドレスへ「お部屋番号」「開錠番号」が送付されます。 -
05
入室
受付の案内板でお部屋の場所を確認し、お部屋へご移動ください。
お部屋のドアに設置されている端末へ「開錠番号」を入力するとドアが開錠されます。
入室後はオートロックのため、外出の際は室内側からサムターン(内側のつまみ)を押しながら回してください。 -
06
チェックアウト
チェックアウトは10:00となります。
- 1受付でタブレット端末へ「チェックインコード」を入力し、「チェックアウト」を選択
- 2宿泊者情報入力用マイページへスマホ・パソコンでログイン、「チェックアウト」を選択
全てのお手続きは完了となります。
①②のいずれかの方法でチェックアウトをお願いします
ホテルのご案内
SMA・MO inn Omitamaスマモ イン 小美玉
茨城・小美玉の静かな環境に佇む、シンプルで心地よい滞在空間。
ビジネスにも観光にも便利なロケーションにありながら、落ち着いた時間をお過ごしいただけます。
ご利用について
| ご利用時間 |
チェックイン 15:00 チェックアウト 10:00 |
|---|---|
| 駐車場 | ホテルの敷地内に無料専用駐車場あり(事前予約不要) |
| 館内施設 | 受付棟(チェックイン端末、自動販売機、AED) |
共用設備・サービス
-
スマートチェックイン
-
free Wi-Fi
-
無料駐車場
-
禁煙ルーム
アクセス・周辺情報
アクセス情報
〒311-3411 茨城県小美玉市野田1-1
- 茨城空港よりお車で約5分
- 石岡駅よりお車で約21分
- 水戸駅よりお車で約42分
- 石岡小美玉スマートICよりお車で約15分
周辺情報
-
セブン-イレブン 小美玉野田店(コンビニ) / 徒歩1分
-
TAIRAYA小川店(スーパー) / 徒歩2分
-
ほっともっと 小美玉野田店(お弁当) / 徒歩3分
-
とんかつ美沢(飲食店) / 車で3分
-
長寿庵(飲食店) / 車で3分
-
海鮮食事処 いしざき(飲食店) / 車で5分
-
ツルハドラッグ 茨城小川店(ドラッグストア) / 徒歩3分
-
市松(居酒屋) / 徒歩17分、車で3分
-
トヨタレンタリース茨城 茨城空港店(レンタカー) / 車で5分
お知らせ
よくあるご質問
宿泊について
- チェックイン前・チェックアウト後の荷物預かりはできますか?
-
申し訳ございません。
荷物のお預かりは承ってございません。
- アーリーチェックイン・レイトチェックアウトは可能でしょうか?
-
15:00以前のチェックイン、翌10:00以降のチェックアウトは不可となります。
システム上、チェックインは15:00~翌6:00、チェックアウトは~翌10:00となります。
- 何時までチェックイン可能でしょうか?
- 翌6:00までチェックイン可能となります。
- 予約サイトに入力したチェックイン時間を変更することはできますか?
- 翌6:00までにチェックインを行う場合は、変更及び連絡はご不要です。
- 予約の人数と日程を変更したいのですが、可能でしょうか?
- 予約変更可能プランの場合は、各ご予約サイトより変更をお願い致します。
- 追加予約をする場合、同室に設定可能でしょうか?
-
ご予約状況によりお受けできない場合がございます。
ご予約サイトよりお問い合わせください。
また、既存予約・追加予約それぞれでチェックイン・チェックアウトが必要となります。
(入室に必要な暗証番号が変更となります)
お部屋について
- 客室設備・アメニティーを教えてください。
-
【設備】
テレビ・洗濯機・電子レンジ・冷蔵庫・流し台・シャワー室・洗面台・トイレ・エアコン・オイルヒーター
【アメニティー】
スリッパ・ハンガー・ケトル・ドライヤー・デスクミラー・シャンプー・リンス・ボディソープ・ハンドソープ・タオル(バスタオル+フェイスタオル)・歯ブラシ・ヘアーブラシ・カミソリ・コットンセット・コップ
その他
- 周辺主要駅などへの所要時間を教えてください。
-
・茨城空港 : 車で4分
・石岡駅 : 車で22分
・水戸駅 : 車で40分
- 周辺施設(コンビニ・飲食店)を教えてください。
-
・コンビニ : 徒歩1分
・スーパーマーケット : 徒歩2分
・飲食店 : 車で2~4分
- 駐車場はありますか?
- 1部屋につき無料で1台のご用意がございます。

